ЛесART, 2-комн., 63 м²

Санкт-Петербург · Ломоносовский р-н, ЛО · ЛесART
Обновлено: 5 апр. 2026 г.
15 688 836 ₽
249 346 ₽ за м²
На 33% выше рынка района
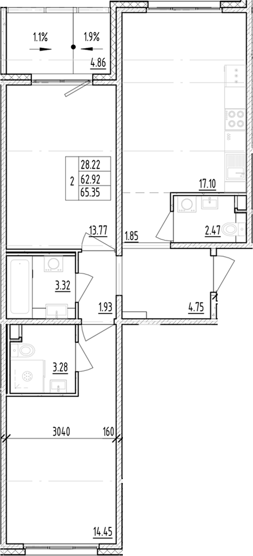
Планировка

Узнать подробности

Ответим за 5 минут

Выберите удобный способ связи

Площадь
62.92 м²жилая 28.22 м²
Комнат
2
Этаж
4 из 12
Сдача
2025
Конструктив
Панельный
Отделка
Чистовая
Очередь
3-я
Приведённая
65.35 м²

Риски

Уровень риска23/100 — Низкий
  • Низкий риск — объект прошёл базовую проверку

Интересует этот объект?

Получите бесплатный разбор с оценкой и рекомендацией за 24 часа

Получить разбор

AI-скоринг объекта

Инвест-скоринг
██/100
Доходность аренды
██%
Рост цены/год
██%
Ликвидность
██/100
Окупаемость
██ лет
Дисконт от рынка
██%

Разблокировать аналитику

Зарегистрируйтесь, чтобы увидеть полный скоринг, ROI и AI-разбор. 3 запроса в месяц бесплатно.

Помощь со сделкой

  • Проверка юридической чистоты объекта и застройщика
  • Переговоры по цене и условиям от вашего имени
  • Полное сопровождение сделки до регистрации
Узнать подробнее

Управление после покупки

  • Сдача в аренду: подбор арендаторов, договор, заселение
  • Контроль состояния объекта и решение проблем
  • Ежемесячные отчёты о доходах и расходах
Узнать подробнее

Жилой комплекс

ЛесART

История цен

Кому подойдёт этот объект

РантьеОтлично

Сдача в аренду с доходностью 8–12% годовых. Пассивный доход без забот.

Инвестор на рост

Покупка на этапе строительства, перепродажа при вводе. Потенциал 15–30%.

СемьяОтлично

2 комн., 63 м² — удобная планировка для семьи по инвестиционной цене.

Что делать после покупки

Сдавать в аренду

Ориентировочный доход ~94 тыс. ₽/мес. Окупаемость ~14 лет.

Перепродать через 2 года

При росте 10%/год → 18.8 млн ₽. Прибыль ~3.1 млн ₽.

Отдать в управление

Мы найдём арендатора, оформим договор, будем контролировать платежи и присылать отчёт каждый месяц.

Стоимость владения

Коммунальные (оценка)3 146 ₽/мес
Итого ~3 146 ₽/мес

Оценка на основе данных объекта и средних значений по региону. Реальные расходы могут отличаться.

Связаться с нами

Получите инвестиционный разбор объекта — бесплатно.

Telegram @Brok1Bot

Аналитика объекта

Доходность, рейтинг, прогноз роста и риски — доступны после авторизации.

Разблокировать

Сравнение с альтернативами

Вложение 15 688 836 ₽ — прибыль через 3 и 5 лет

Этот объект
3г: +3 294 656 ₽5г: +5 491 093 ₽

7.0%

в год

Депозит 21%ЛУЧШЕ
3г: +10 265 774 ₽5г: +20 615 935 ₽

18.3%

в год

Акции (индекс)
3г: +6 352 849 ₽5г: +11 960 254 ₽

12.0%

в год

* Депозит: после НДФЛ 13%. Акции: средняя доходность индекса МосБиржи. Недвижимость: аренда + рост стоимости. Оценочные данные, не гарантия.

Что вы получаете

  • Проверка юридической чистоты объекта
  • Персональный разбор с финмоделью
  • Полное сопровождение сделки
  • AI-анализ по 15 параметрам
Рассчитать доходность →В портфель